Mqabba – 3 bedroom Apartment
- €395,000
Overview
Property ID: 19284
- Apartment / Flat
- 3
- 2
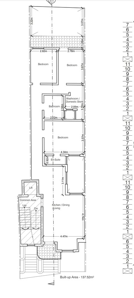
Description
Mqabba spacious 3 bedroom, 2 bathroom apartment served with lift, has 2 balconies, high windows and lots of natural light also featuring a Laundry room! Two modern ACs
Ready to live in.
Address
Open on Google Maps-
Address: Mqabba, Western Region, Malta
-
City: Mqabba
Details
Updated on March 20, 2026 at 6:51 pm-
Property ID 19284
-
Price €395,000
-
Bedrooms 3
-
Bathrooms 2
-
Property Type Apartment / Flat
-
Property Status For Sale




